收藏本站 劰载中...网站公告 | 吾爱海洋论坛交流QQ群:835383472

海上仪器如何进行锚泊式试验装备?

[复制链接]

我国拥有绵长的海岸线,管辖海域面积约300万平方千米。海洋仪器设备关键技术的研发与相关技术的产业化是利用海洋资源、推动海洋经济发展的关键。在国家政策的引导下,国产海洋仪器设备的发展步入快车道,但产品精度、可靠性以及环境适应性距离世界先进水平尚有较大差距,导致国外海洋仪器设备以高昂的价格占领国内市场,严重影响我国海洋经济发展与海洋环境信息安全。

海洋仪器设备经常工作在复杂、恶劣的海洋环境中,基于海上试验场的实海况测试作为校验海洋仪器设备性能的重要手段,是改善相应设计,提升设备稳定性、可靠性以及环境适应性的关键。

目前英国、美国和爱尔兰等国家已经具备了从海洋仪器设备关键部件与子系统实验室测试到整体系统基于试验平台进行实海况测试的能力,并开展了大量的仪器装备试验,这些测试平台极大的支撑了海洋产业的发展。而国内海上试验场目前主要面向海洋仪器设备的设计与研发,缺乏权威、公平、便利化、低成本的海上试验测试平台。针对这一薄弱环节,国家重点研发计划支持了“基于固定平台的规范化海上试验研究与示范”项目,在国家海洋综合试验场(威海)建造并投入使用锚泊式海上试验平台,并制定《海洋仪器设备海上试验管理规范》等文件,为推进我国海洋仪器设备的研发与产业化进程提供有利条件。

一、锚泊式海上试验平台

锚泊式海上试验平台于2019年9月布放于山东省威海市褚岛附近的国家海洋综合试验场,如图1所示。本文首先介绍平台锚泊海域的海洋资源及试验平台的结构。

2e1bcb2d8e11e5ec34f11b9048a3a6b7.png

图1 锚泊式海上试验平台

⒈平台所在海域的海洋环境条件

褚岛北部试验场海域的波浪能、潮流能资源丰富。丰富的水深地形和规律的水文资源可以为海洋仪器装备的试验和测试提供良好的海洋环境条件。

⑴水深以及地质条件:锚泊式海上试验平台所在海域存在一条长2500m、宽500m的海沟,海沟部分地区的深度超过60m,最深处的海水深度约为70m,海沟到褚岛北部海岸线距离为700~1200m,是我国浅海大陆架中难得的近岸深水区域。海底地质存在以淤泥和黏土为主的、约0~5m厚的沉积物。海域最大潮差3.08m,平均潮差1.73m。

⑵潮流:受特殊地理位置因素的影响,试验海域主要呈现不正规半日潮流,流向为东西向往复流。靠近褚岛一侧海域受地形影响,潮流流向主要为东西方向;远离褚岛一侧海域的潮流流向仍然以东西流向为主,但SE-NW和NE-SW向也略明显。靠近褚岛一侧海域的潮流受陆地挤压的影响,流速明显高于远离褚岛一侧的海域,且底部流速较强,垂向一致性较好;观测期间,靠近褚岛一侧的海域最大潮流流速可达1.28m/s,流速高于0.5m/s出现的概率在30%左右。

⑶波浪:平台所在海域的波浪方向以偏北向和东向浪为主,其中北向、东北以及西北向浪共占了约58.5%,东向浪占了约37%。年平均有效波高为0.6~0.7m,且季节性差异较为明显。在冬季受季风影响显著,风浪较大且以北向为主,11月至次年2月的平均有效波高可达1m。

⑷气象:据威海气象台统计,平台所处海域年平均气温12.1°C,最热月为8月,月平均气温24.6°C。最冷月为1月,月平均气温-1.5°C,且该海域无冰期;年平均降雨量为793.4mm,主要集中在7—8月,占年降水总量的49%;常见风向为西北和西北偏北向,强风向为西北偏北和西南向,年平均风速为4.1m/s,最大风速为22m/s。

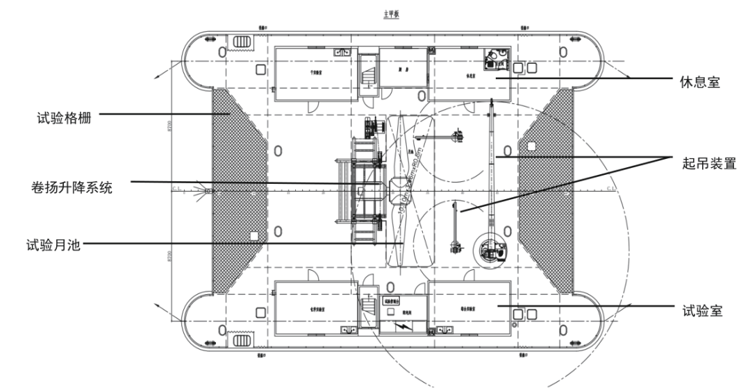
⒉锚泊式海上试验平台的结构

锚泊式海上试验平台布放位置水深69m,距离最近码头约3.7km。平台参数如表1所示,结构如图2所示。

ef1d6262b50aaf629651aa2a097443df.png

图2 平台结构设计平面图

⑴试验空间:平台设面积不小于20m2的一个休息室和三个试验室,同时,留有约200m2的甲板操作空间。

⑵试验月池:在船体中部设计有10m长,3.4m宽的月池,用于大型海洋仪器装备投放。

⑶起吊装置:平台配有1台安全工作负荷5t、臂展10m的旋转吊机,主要用于大型海洋仪器设备的吊装与调试工作;2台载重0.5t、臂展3m的辅助旋转吊机,用以小型设备的吊装、调试以及仪器设备的剖面测量试验。

⑷卷扬升降系统:采用钢索绞车通过滑轮组的结构形式实现搭载平台的升降操作。搭载平台最大可浸没水深5.8m,最大起升高度位于甲板以上2.5m,静载重13t。方便试验设备的安装、维护与回收。

⑸电力系统:平台配备柴油发电机2台,包括50kW主发电机组和12kW停泊发电机组。实验室设置3相380V、单相220V及直流24V电源,满足试验装置供电需求。

⑹保障设施:平台处于移动网络覆盖区,为用户提供网络支持及数据远程传输;平台安装红外视频监测系统,实现平台及试验场海域目标的不间断巡视和取证,保障试验设施安全。

表1  平台主要参数

类别

参数

总长/m

30.0

型宽/m

21.0

片体宽/m

3.6

片体中心距/m

17.4

型深/m

4.5

设计吃水/m

2.2

总吨位/t

432.0

⒊搭载锚泊式海上试验平台进行海洋仪器设备测试的优势

①锚泊式海上试验平台为钢制漂浮式综合试验平台,采用双浮体船型,具有较好的抗风浪性能。在平台功能方面,充分考虑了各种类型的海洋仪器设备海上试验的需求。

②威海浅海试验场海域具备适宜的海洋环境,结合该试验平台,可以同时开展多类型海洋仪器设备和海洋能发电装置模型的海上试验与观测。

③该平台可以在特定的试验海域为海洋仪器设备提供连续、长时间序列的海上测试,可以较好地满足相应海洋仪器设备的试验需求。在许可海况下,可以对试验设备进行随时组装、拆卸以及调试维护,使海上试验更加方便的同时,较好的降低试验成本。

④自布放使用至今,依托平台已开展15项海洋仪器设备的海上试验,测试仪器主要包括国家重点研发计划支持研发的温盐深测量仪、声学多普勒流速剖面仪(ADCP)、波潮仪、生态浮标、剖面漂流浮标以及水平轴潮流发电装置等。

本文结合已测试海洋仪器设备的试验方案,依托海上试验平台提出具有代表性仪器的试验方法。

二、海洋仪器设备的搭载与测试

⒈水平轴潮流能发电装置

潮流能发电装置海上试验依托于海上试验平台,如图3所示,对潮流能发电装置在实海况下的工作性能进行测试与验证。

ede70e5b7bf00caff7d2cea6e707a815.png

图3 基于海上试验平台的水平轴潮流能发电装置测试设置示意图

在图3中可以看出,测试平台安装有吊机以及潮流水轮机升降系统。潮流发电装置拖运至平台附近后,由吊机将测试设备吊装至水轮机位置A,进一步完成测试设备在平台上的安装固定。然后控制升降系统将测试设备浸没至水轮机位置B,开始海上试验测试。升降系统最大行程(水轮机位置A到水轮机位置B)为11m。其中,水轮机位置B距离海水表面5.8m。

考虑到潮流能发电装置测试位置(水轮机位置B)与海水表面距离较小,比例样机试验过程中,波浪等其他因素对潮流发电装置性能测试有所影响。因此,试验平台周围布设波浪骑士浮标、水下座底式观测平台、综合多参数浮标等仪器设备,为试验测试提供实时资源观测数据。所以,潮流能发电装置海上试验监测系统主要由气象子系统、水文子系统以及潮流发电装置输出监测子系统三部分组成。其中,气象子系统通过风速传感器、温度与气压传感器、相对湿度传感器以及降水量传感器测量试验区域的气象信息。水文子系统的监测内容主要有两部分,一部分是通过波浪骑士测量试验海域的波高以及波向;另一部分则是通过座底式ADCP测量潮流涡轮附近的潮流流速与流向,为下一部分析潮流涡轮性能奠定基础。

潮流能发电装置输出监测子系统则是对潮流发电装置输出的电压、电流、功率以及涡轮转速等信息进行监测。以上三部分子系统实时监测的数据通过数据采集器输出至数据处理控制子系统,由该子系统处理、存储以及显示相应监测数据,自动生成报文、月报表等文件,并将数据传输至数据传输网。潮流能发电装置海上试验监测系统如图4所示。依托试验平台,潮流发电装置海上试验方法的应用,进一步促进潮流能产业的研发与技术成果转化。

f440a9ba513e3c6431a0679066a4d293.png

图4 潮流能发电装置海上试验监测系统设计框图

⒉温盐深测量仪(CTD)

CTD作为一种常用长时间序列监测的海洋仪器设备,依托海上试验平台开展对CTD进行近海岸、长期有效的测试与监测,可提升该类型/相似类型设备的稳定性、可靠性、环境适应性,以及在我国北方典型海域夏季生物生长茂盛期的抗污染能力,促进其国产化进程与相关技术的发展。

CTD性能海上试验方法参考《海洋仪器研制质量管理规范》《海洋仪器设备海上试验管理规范》《海洋仪器海上试验规范》(HYT141—2001)《“规范化海上试验”质量控制通用规范》等。测试方法为:首先,搭建比测平台。根据被测海洋仪器设备类型,选择相应国际先进的产品作为比测目标。针对抗污染CTD,本文选取海鸟SEB37CTD;其次,将被测抗污CTD与海鸟SEB37CTD安装放入同一比测架内,以相同的数据采样方式进行工作,比测架以及两种CTD安装如图5所示;然后,通过锚链一端连接至锚泊式海上试验平台,一端连接比测架,实现比测架与测试海洋仪器设备的投放以及长时间测试;最后进行设备回收,并进行第三方检测认证。在本文抗污染CTD测试中,设备回收后的状态如图6所示,交由第三方检测机构复检结果显示:长时间海上测试后参试设备电导率最大漂移为0.0235mS/cm。

a797cc3c3efcdf200cd63a5197a7584c.png

图5 近海岸CTD海试比测架安装示意图

60adcca6b9156a94c9816ac0be376913.png

图6 近海岸CTD海试设备回收后状态图

⒊有缆海洋仪器设备

有缆海洋仪器设备能够给科研工作者提供实时监测数据,在海洋环境监测以及水下机器人(ROV)等方向有较为广泛的应用。本文基于锚泊式海上试验平台,结合已测试的有缆海洋仪器设备,探索该类有缆设备的海上测试方法。

⑴有缆声学多普勒流速剖面仪(ADCP)

针对有缆、固定式ADCP,参考《海洋仪器设备海上试验管理规范》《海洋仪器海上试验规范》(HYT141—2001)《“规范化海上试验”质量控制通用规范》等,探索海试的方法。测试前准备有:首先,研制比试平台,同时搭载定位浮球释放器、被测ADCP以及比测ADCP,并以水密接头的形式连接铠装电缆;其次,通过船舶将比试平台运输至试验海域,并将其安全投放至指定区域。投放完成后,运输船舶需将铠装电缆输送至锚泊式试验平台,有缆、固定式ADCP海试布局如图7所示。

针对不同需求,设置两种数据接收模式,分别为:①试验平台内短期、连续测试。该方式将测试设备通过铠装电缆直连位于锚泊式海上试验平台的数据接受以及显示仪器,在观测试验设备运行安全性的同时,可实现短期内持续监测被测设备的工作状态以及性能;②实时长期、连续测试。该方式需要在锚泊式海上试验平台内安装数据传输单元(DTU)。因此该种方式的连接模式需要被测设备首先通过铠装电缆连接DTU,然后通过DTU进行数据转发,通过远端上位机接受,进而进行长期有效的连续测试以及实时监测。

1dbf8891dcb1513930783bd4975d0429.png

图7 有缆ADCP海上测试布置示意图

测试完成后,按照标准《声学多普勒流速剖面仪》(GB/T24558—2009)和《声学多普勒流速剖面仪检测方法》(HY/T102—2007)对试验数据进行对比分析。

⑵有缆水下机器人(ROV)

基于锚泊式海上试验平台进行有缆水下机器人(ROV)的测试,可对ROV系统性能、工作稳定性以及可靠性进行实时监测,并为后续深远海域测试做好准备。

ROV海上测试方法主要有以下内容:①ROV通过船舶运输吊装至锚泊式海上试验平台后,首先在不上电的前提下检测ROV的本体,确保ROV本体没有发生损坏以及海试作业安全;②在海上试验平台甲板上对测试ROV上电,观察仪器各部件可安全稳定运行,并且与上位机通信良好;③通过海上试验平台吊机将被测ROV吊装至海平面,但不放开吊缆,进一步测试ROV在海洋环境中各部件的运行稳定性以及与上位机的通信状态;④放开吊缆,实现被测ROV的自主作业,观察ROV的工作状态与性能;⑤通过缆绳与吊机实现被测ROV的回收,进一步检查ROV各部件的状态,完成海上测试。依托锚泊式海上试验平台的ROV测试如图8所示。

a8be1051d31e0c40a1987f38f3b48343.png

图8 有缆水下机器人(ROV)海上测试图

在以上测试方法描述中可以看出,依托锚泊式海上试验平台,ROV性能测试过程中无需辅助船舶。在保证试验人员以及测试仪器安全的前提下,可以对被测仪器进行实时、连续的测试。

三、结论

锚泊式海上试验平台的投放与使用,为我国海上仪器设备的测试提供了权威、公平、便利化、低成本的海上试验测试环境,数个国家重点研发计划项目已在试验场区依托海上试验平台进行设备试验和测试。本文结合现有设备和已开展的试验测试,探索并提出不同类型海洋仪器设备的试验方法,具有较高的可行性与适用性。锚泊式海上试验平台可长期应用并服务于浅海综合试验场,有效促进我国海洋仪器设备的研发与技术成果转化。


5 c( n& x  x5 U, Y5 E' l! L+ t
回复

举报 使用道具

相关帖子

全部回帖
暂无回帖,快来参与回复吧
懒得打字?点击右侧快捷回复 【吾爱海洋论坛发文有奖】
您需要登录后才可以回帖 登录 | 立即注册
尖叫的土豆
活跃在2026-3-23
快速回复 返回顶部 返回列表